Дом, 113 м², 1 эт.

Свердловская область, посёлок Прохладный, Лиственная улица, 18

8 500 000 руб.

75 222 руб./м²

Описание Объект №557

Продаётся дом 113 м² в коттеджном посёлке «Ягодный квартал»
Участок 6,32 сотки (ИЖС) | Чистовая отделка | Современный дом рядом с Косулино

На продажу предлагается новый одноэтажный дом площадью 113 м², расположенный в современном коттеджном посёлке «Ягодный квартал». Участок — 6,32 сотки, категория ИЖС. Удобное местоположение: рядом вся инфраструктура посёлка Косулино, до Екатеринбурга — всего 30 минут езды.

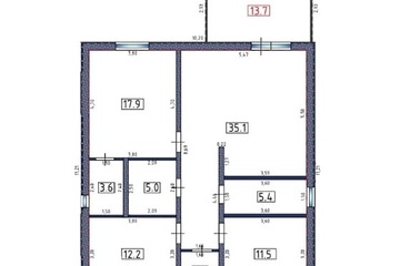
Планировка:
— Кухня-гостиная с выходом на террасу
— Мастер-спальня с собственным санузлом
— Две отдельные спальни
— Общий санузел
— Котельная
— Просторная терраса для отдыха
— Навес для автомобиля

Отделка:
— Состояние — чистовая
— Стены оштукатурены
— Полы — ламинат и керамогранит
— Натяжные потолки
— Смонтировано освещение
— Установлены межкомнатные двери

Преимущества:
— Готовый дом — можно сразу заезжать и жить
— Участок правильной формы
— Современная архитектура и продуманная планировка
— Экологически чистое место с отличной транспортной доступностью
— Вся инфраструктура рядом: магазины, школа, детский сад, остановка общественного транспорта

Цена в ипотеку 8.700.000₽
Цена за наличные 8.500.000₽

Документы готовы. Возможна покупка по ипотеке.
Дом полностью готов к проживанию — приезжайте на просмотр и убедитесь сами!

  • Площадь участка :

  • Тип :

  • Площадь :

  • Этажность :

  • Водопровод :

  • Отопление :

  • 632 м²

  • Дом

  • 113 м²

  • 1

  • Подключен

  • Центральное

  • Тип участка :

  • Материал дома :

  • Ремонт :

  • Кол-во комнат :

  • Газ :

  • ИЖС

  • Газобетонный блок

  • Обычный

  • 4

  • Подключен

Карта посёлок Прохладный, Лиственная улица, 18

Ипотека
Страхование
Заказать звонок
Запись на просмотр
Запись на бесплатную консультацию

Похожая недвижимость

Дом, 130 м², 1 эт.
  • Продажа
10 000 000 руб.

Дом

Дом, 130 м², 1 эт.

село Косулино, улица Огородников, 7

Дом, 127,9 м², 1 эт.
  • Продажа
10 000 000 руб.

Дом

Дом, 127,9 м², 1 эт.

посёлок Прохладный, Сосновая улица, 6

Дом, 102 м², 1 эт.
  • Продажа
8 800 000 руб.

Дом

Дом, 102 м², 1 эт.

посёлок Прохладный, Сосновая улица, 31В

Дом, 129,5 м², 1 эт.
  • Продажа
9 500 000 руб.

Дом

Дом, 129,5 м², 1 эт.

посёлок Прохладный, Сосновая улица, 26

Дом, 159,8 м², 1 эт.
  • Продажа
8 000 000 руб.

Дом

Дом, 159,8 м², 1 эт.

ДНТ Сысертское, 34

Дом, 118 м², 1 эт.
  • Продажа
8 300 000 руб.

Дом

Дом, 118 м², 1 эт.

коттеджный посёлок Чистые росы-2, Перламутровая улица, 48