Дом, 114,5 м², 1 эт.

Свердловская область, СНТ Свежий воздух, Дачная улица, 7

7 200 000 руб.

62 883 руб./м²

Описание Объект №566

Дом в посёлке Бобровский

Продаётся новый дом площадью на участке с забором.

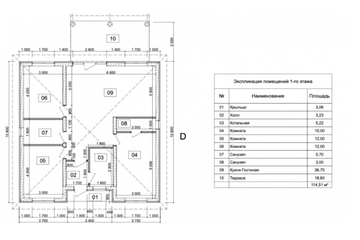
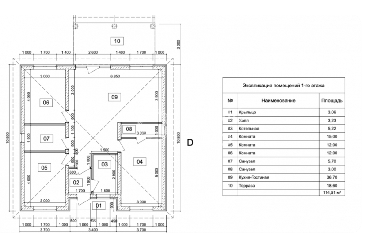
Планировка:
— кухня‑гостиная;
— 2 спальни;
— хозяйская спальня с собственным санузлом;
— санузел;
— терраса.

Характеристики:
— отделка: предчистовая;
— дом новый;
— участок оборудован забором.

Локация:
— посёлок Бобровский;
— вся необходимая инфраструктура в шаговой доступности.

Ключевые преимущества:
— функциональная планировка с отдельной хозяйской спальней;
— наличие террасы для отдыха на свежем воздухе;
— предчистовая отделка позволяет реализовать индивидуальные дизайнерские решения;
— готовый забор на участке — дополнительная безопасность и комфорт.

Условия приобретения:
— доступна покупка по льготной семейной ипотечной программе;
— документы подготовлены для сделки.

Для организации просмотра и получения дополнительной информации — свяжитесь с нами.

  • Площадь участка :

  • Тип :

  • Площадь :

  • Этажность :

  • Водопровод :

  • Отопление :

  • 7,1 сот.

  • Дом

  • 114,5 м²

  • 1

  • Скважина

  • Автономное электро

  • Тип участка :

  • Материал дома :

  • Ремонт :

  • Кол-во комнат :

  • Газ :

  • Ведение садоводства

  • Блочный

  • Под отделку

  • 4

  • Нет

Карта СНТ Свежий воздух, Дачная улица, 7

Ипотека
Страхование
Заказать звонок
Запись на просмотр
Запись на бесплатную консультацию

Похожая недвижимость

Дом, 131,7 м², 1 эт.
  • Продажа
7 590 000 руб.

Дом

Дом, 131,7 м², 1 эт.

СНТ Свежий воздух, улица Алёшина, 40

Дом, 125 м², 1 эт.
  • Продажа
7 590 000 руб.

Дом

Дом, 125 м², 1 эт.

СНТ Свежий воздух, улица Алёшина, 42

Дом, 140 м², 1 эт.
  • Продажа
8 000 000 руб.

Дом

Дом, 140 м², 1 эт.

СНТ Сосновый Бор 1, 7

Дом, 88,5 м², 1 эт.
  • Продажа
7 900 000 руб.

Дом

Дом, 88,5 м², 1 эт.

посёлок Бобровский, Комсомольская улица, 15

Дом, 88,1 м², 1 эт.
  • Продажа
7 900 000 руб.

Дом

Дом, 88,1 м², 1 эт.

посёлок Бобровский, Комсомольская улица, 15

Дом, 159,8 м², 1 эт.
  • Продажа
8 000 000 руб.

Дом

Дом, 159,8 м², 1 эт.

ДНТ Сысертское, 34

Дом, 80 м², 1 эт.
  • Продажа
7 500 000 руб.

Дом

Дом, 80 м², 1 эт.

коттеджный посёлок БарнХаус, улица Чайковского, 9