Свердловская область, ДНТ Чистые Ключи, Осенняя улица, 9
Дом 143 м² в окружении леса — тишина, пространство и продуманная планировка для комфортной жизни.
Большой участок ИЖС 11,4 сотки — редкое сочетание уединения и свободы.
Идеальный вариант для семьи, которая ценит природу и комфорт.
Дом расположен в КП «Чистые Ключи» — поселок в окружении леса, где можно по-настоящему отдохнуть от города и наслаждаться тишиной каждый день.
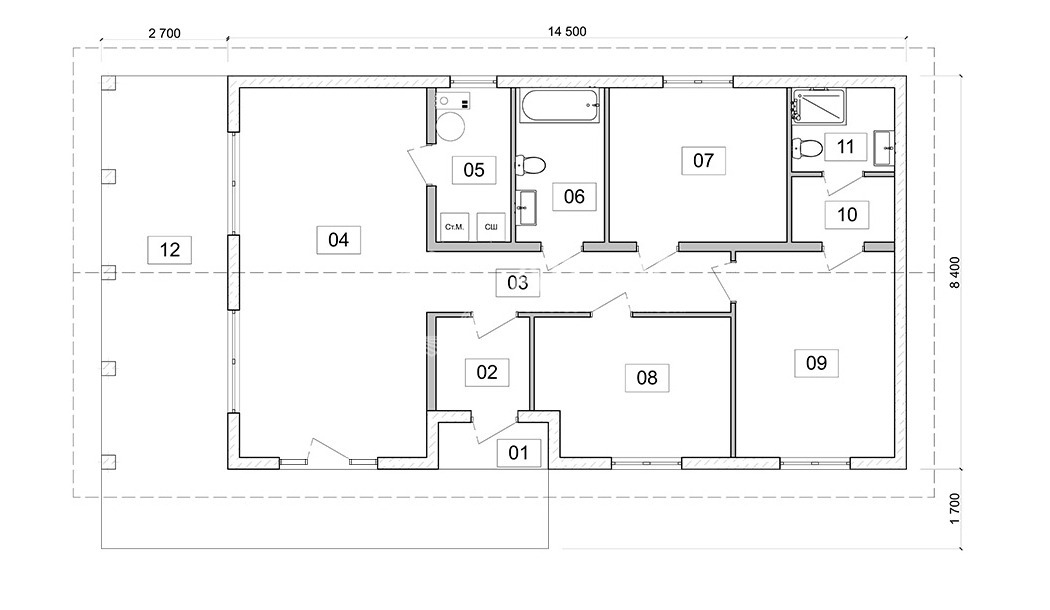
Планировка создана для удобства: просторная кухня-гостиная, 2 отдельные спальни, мастер-спальня с гардеробом и собственным санузлом, дополнительный санузел, котельная. Есть терраса — место для отдыха на свежем воздухе.
Участок 11,4 сотки ИЖС дает максимум возможностей: ландшафтный дизайн, баня, зона барбекю или детская площадка.
Дом, в котором легко дышится и хочется остаться.
Площадь участка :
Тип :
Площадь :
Этажность :
Водопровод :
Отопление :
11,4 м²
Дом
143 м²
1
Скважина
Автономное электро
Тип участка :
Материал дома :
Ремонт :
Кол-во комнат :
Газ :
ИЖС
Блочный
Под отделку
4
Нет